PROJEKAT U TOKU

Kumodraška 7

  • Početak radova – Mart 2025
  • Završetak radova – Jul 2026

Dobro došli u Kumodrašku 7, savršeni izbor za sve koji su navikli na najviše standarde, dinamičan život i traže stan vrhunskog kvaliteta.

Stanovi u stambenom objektu u Kumodraškoj 7, projektovani su tako da ispune sve kriterijume estetskog i praktičnog ugođaja, predstavljaju najviši nivo komfora i elegancije savremenog doba.

Kumodraška 7

SAVREMENI PROSTOR,
PRILAGOĐEN VAMA.

Zgrada u Kumodraškoj 7 predstavlja spoj modernog dizajna i funkcionalnosti, kreirana da odgovori na potrebe savremenog načina života. Sa pažljivo odabranim materijalima, prostranim i svetlim stanovima, pruža komfor i toplinu doma.

Fasada i enterijer izrađeni su prema najnovijim trendovima, kombinujući savremenu estetiku sa visokokvalitetnim završnim obradama. Svaka jedinica je pažljivo osmišljena kako bi maksimalno iskoristila prostor, omogućavajući udobnost i privatnost.

Kumodraška 7

STRUKTURA OBJEKTA

  • 16 stanova 
  • 18 parking mesta
  • Video nadzor
  • Prostrane terase i balkoni
  • Podno i Zidno grejanje
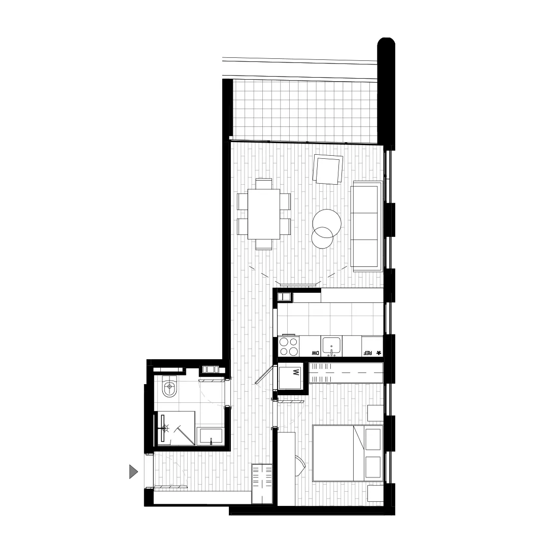
DVOSOBNI - PRVI SPRAT
PRVI SPRAT

DVOSOBAN STAN

52.19 m2
1 Hodnik 5.62 m2
2 Kupatilo 4.58 m2
3 Kuhinja 4.33 m2
4 Dnevna soba i trpezarija 17.71 m2
5 Spavaća soba 11.26 m2
6 Vešernica 0.89 m2
7 Terasa 7.79 m2
PRVI SPRAT

DVOSOBAN STAN

49.61 m2
1 Hodnik 5.62 m2
2 Kupatilo 4.58 m2
3 Kuhinja 4.33 m2
4 Dnevna soba i trpezarija 17.71 m2
5 Spavaća soba 10.88 m2
6 Vešernica 0.89 m2
7 Terasa 5.60 m2
DVOSOBNI - TREĆI SPRAT
TREĆI SPRAT

DVOSOBAN STAN

55.83 m2
1 Hodnik 10.38 m2
2 Kupatilo 3.90 m2
3 Kuhinja 5.53 m2
4 Dnevna soba i trpezarija 17.32 m2
5 Spavaća soba 11.23 m2
6 Vešernica 0.55 m2
7 Terasa 6.92 m2
TROSOBNI STANOVI
TREĆI SPRAT

TROSOBAN STAN

81.65 m2
1 Hodnik 8.30 m2
2 Kupatilo 5.04 m2
3 Dnevna soba, kuhinja i trpezarija 30.88 m2
4 Spavaća soba 13.17 m2
5 Spavaća soba 14.18 m2
6 Terasa 4.75 m2
7 Terasa 5.32 m2
SUTEREN

TROSOBAN STAN

114.06 m2
1 Hodnik 6.24 m2
2 Hodnik 4.59 m2
3 Kupatilo 5.44 m2
4 Kuhinja 6.90 m2
5 Dnevna soba i trpezarija 30.96 m2
6 Spavaća soba 10.07 m2
7 Spavaća soba 14.10 m2
8 Toalet 3.34 m2
9 Dvorište 32.24 m2
Kumodraška 7

LOKACIJA

U neposrednoj blizini nalaze se osnovne i srednje škole, sportski i zdravstveni objekti, velike prodavnice i benzinske stanice.

Takođe, lokacija omogućava brz izlaz na autoput E75, što je pogodno za one koji često putuju.

Ova lokacija je atraktivna za one koji traže moderan životni prostor sa dobrim saobraćajnim vezama i pristupom različitim sadržajima u Beogradu.

  • Hram Svetog Save - 4 minuta vožnje
  • Karađorđev park - 4 minuta vožnje
  • Autoput Beograd - Niš - 3 minuta vožnje
  • Kalenić pijaca - 4 minuta vožnje
  • Trg Slavija - 5 minuta vožnje
  • Klinički centar Srbije - 6 minuta vožnje
  • Beo Shopping Centar - 6 minuta vožnje
  • Stadion Crvena Zvezda - 4 minuta vožnje
Kumodraška 7

SIGURNOSNA I SOBNA VRATA

Ulazna sigurnosna vrata su blindirana, opšivena medijapanom debljine 6mm proizvođača marke Delux. 

Unutrašnja sobna vrata od farbanog medijapana. 

Skrivena šarka, AGN magnetna brava.

Kumodraška 7

PARKET

U stanovima je predviđen hrastov višeslojni parket dimenzija cca 1000-2000 x 160 x 14 Italijanskog proizvođača LABOR. 

Kupci koji se odluče na kupovinu stana u ranijoj fazi izgradnje imaće priliku da odaberu višeslojni parket istog proizvođača i u istoj vrednosti, ukoliko to žele.

Kumodraška 7

KERAMIKA I SANITARIJE

Kupci koji se odluče za kupovinu stana u ranijoj fazi gradnje imaće mogućnost prilagođavanja dezena-brenda prema svom ukusu. 

Prvoklasni proizvodi i kolekcije kreirani prema najvišim svetskim standardima vodećih proizvođača tipa Hansgrohe, Duravit, Villeroy Boch ili slično.

Kumodraška 7

ULAZ U ZGRADU

Moderno dizajniran ulazni deo objekta, projektom je predviđeno postavljanje granitnih ploča prvoklasnog kvaliteta u kombinaciji sa zidom obloženim drvenim oblogama, skrivenom rasvetom i stilizovanim tapetama i tehnikom. 

Botticino & Oriente Brownie mermeri.

Kumodraška 7

FASADNA STOLARIJA

Prozori, balkonska vrata i klizni otvori su izrađeni od Aluminijumske stolarije Premium kvaliteta sa odličnim perfomansama termičke izolacije uz visoku konstruktivnu fleksibilnost i izvanredan dizajn. Brend Alumil. 

RAL boja stolarije 8019. 

Niskoemisiono troslojno staklo punjeno argonom. 

Za maksimalan komfor tu su aluminijumske roletne sa elektromotorom.

Kumodraška 7

GREJANJE I HLAĐENJE

Stanovi su opremljeni podnim i zidnim grejanjem koje funkcioniše putem etažnog kotla. Ovaj sistem grejanja osigurava ravnomernu distribuciju toplote, pružajući prijatan osećaj topline tokom hladnijih meseci. Zidno grejanje dodatno poboljšava udobnost, omogućavajući optimalnu temperaturu u svim delovima stana bez potrebe za vidljivim grejnim telima.

Hlađenje stana je rešeno putem naprednog multi split klima sistema. Ovaj sistem omogućava pojedinačno kontrolisanje temperature u različitim prostorijama, čime se postiže savršena klima u svakom delu stana.

Kumodraška 7

VAŠ POGLED NA SVET