PLANIRANI PROJEKAT

Braće Kovač 35

  • Početak radova – Jun 2026
  • Rok izgradnje 18 meseci

U mirnoj ulici na adresi Braće Kovač 35 u Beogradu nastaje savremeni stambeni objekat koji objedinjuje modernu arhitekturu, vrhunski kvalitet gradnje i pažljivo osmišljen koncept stanovanja.

Posebna pažnja posvećena je kvalitetu izgradnje, energetskim performansama objekta i savremenim tehničkim rešenjima, čime se obezbeđuje dugotrajnost, funkcionalnost i visok standard stanovanja.

Braće Kovač 35

HARMONIJA ARHITEKTURE I KOMFORA

Objekat se prostire na četiri nadzemne etaže i obuhvata ukupno 15 stanova, projektovanih sa ciljem da pruže maksimalan komfor, funkcionalnost i estetski doživljaj savremenog urbanog života.

Arhitektura zgrade odlikuje se elegantnim linijama, zaobljenim formama i pažljivo odabranim materijalima koji fasadi daju prepoznatljiv, moderan karakter.

Velike staklene površine i prostrane terase omogućavaju obilje prirodne svetlosti i otvoren pogled, dok su spoljašnji detalji i zelene površine pažljivo uklopljeni u ambijent kako bi stanarima pružili osećaj privatnosti i mira u samom srcu grada.

Braće Kovač 35

STRUKTURA OBJEKTA

  • 15 stanova
  • Podzemna garaža
  • Video nadzor
  • Terase sa staklenom ogradom
Braće Kovač 35

LOKACIJA

Objekat u ulici Braće Kovač 35 smešten je u jednom od najtraženijih i najpitomijih delova Beograda. Ova lokacija predstavlja savršen balans – dovoljno povučena od gradske buke da pruži miran porodični život, a istovremeno savršeno povezana sa ključnim tačkama prestonice.

Život na ovoj adresi znači da su vam sve svakodnevne potrebe pokrivene u krugu od nekoliko minuta hoda, u neposrednoj blizini nalaze se renomirane osnovne škole, vrtići i brojni fakulteti (FON, FPN, Saobraćajni fakultet), što lokaciju čini idealnom za porodice i investiciju.

Blizina sportskog centra “SC Voždovac” (Banjica) i prelepe Bajfordove šume (Banjičke šume) nudi neograničene mogućnosti za trčanje, šetnju i aktivan odmor u prirodi.

Na samo par minuta su supermarketi, apoteke, banke, kao i popularni kafići i restorani koji Voždovcu daju poseban šarm.

  • Hram Svetog Save - 5 minuta vožnje
  • Karađorđev park - 4 minuta vožnje
  • Autoput Beograd - Niš - 2 minuta vožnje
  • Kalenić pijaca - 4 minuta vožnje
  • Trg Slavija - 5 minuta vožnje
  • Klinički centar Srbije - 6 minuta vožnje
  • Beo Shopping Centar - 5 minuta vožnje
  • Stadion Crvena Zvezda - 4 minuta vožnje
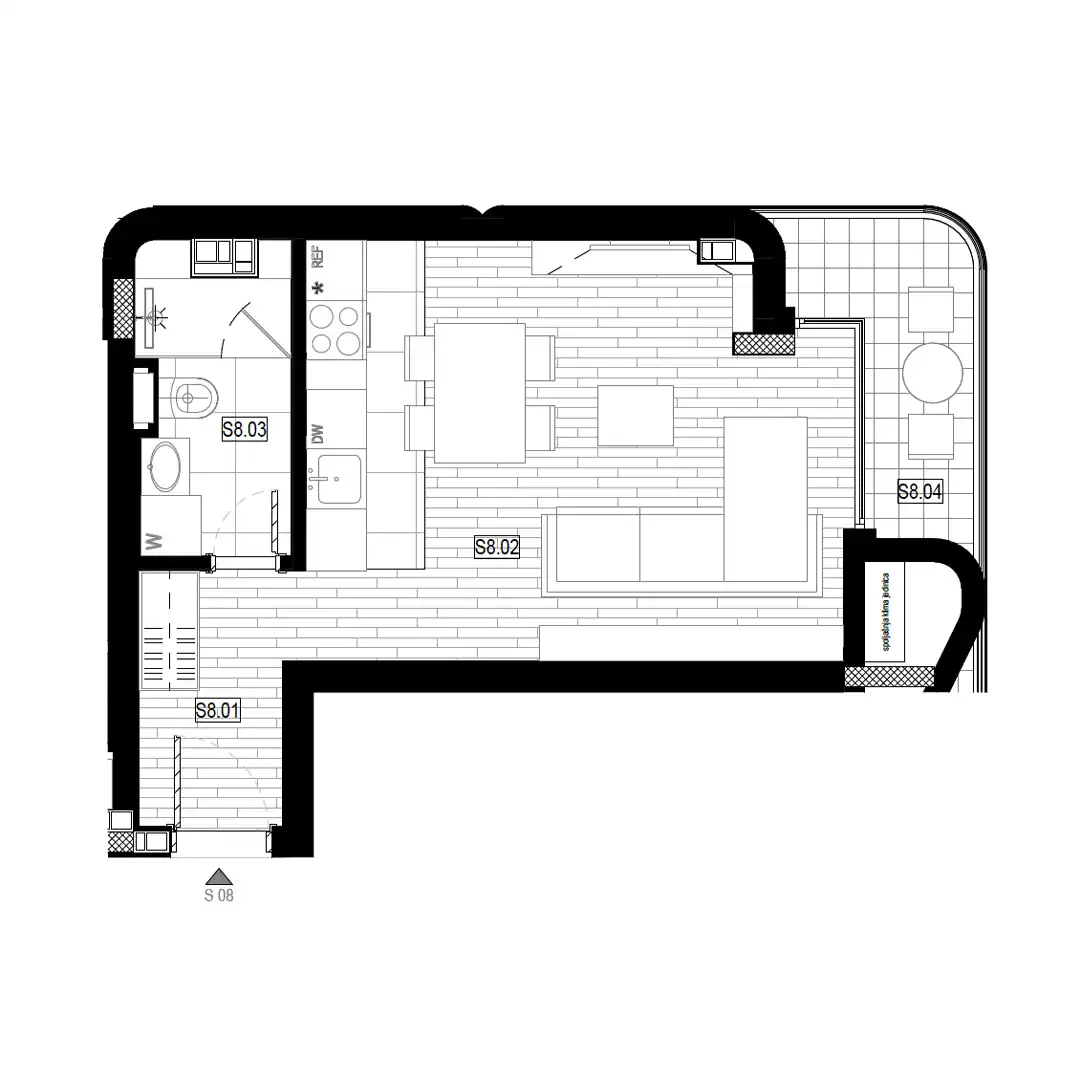
PRIZEMLJE
PRIZEMLJE

DVOIPOSOBAN STAN

58.22 m2
1 Ulaz 5.40 m2
2 Dnevna soba sa trpezarijom 23.83 m2
3 Kuhinja 4.27 m2
4 Spavaća soba 11.73  m2
5 Spavaća soba 7.75 m2
6 Kupatilo 5.24 m2
PRVI SPRAT
PRVI SPRAT

DVOSOBAN STAN

53.18 m2
1 Ulaz 7.23 m2
2 Dnevna soba sa trpezarijom 19.97 m2
3 Kuhinja 5.86 m2
4 Spavaća soba 10.34  m2
5 Kupatilo 5.24 m2
6 Terasa 4.54 m2
DRUGI SPRAT
DRUGI SPRAT

JEDNOSOBAN STAN

35.65 m2
1 Ulaz 2.47 m2
2 Kombinovana soba 23.62 m2
3 Kupatilo 5.05 m2
4 Terasa 4.51 m2
TREĆI SPRAT
TREĆI SPRAT

TROSOBAN STAN

62.59 m2
1 Ulaz 5.40 m2
2 Dnevna soba sa trpezarijom 23.69 m2
3 Kuhinja 4.27 m2
4 Spavaća soba 11.73  m2
5 Spavaća soba 7.75 m2
6 Kupatilo 5.24 m2
7 Terasa 4.51 m2
Braće Kovač 35

SIGURNOSNA
I SOBNA VRATA

Ulazna sigurnosna vrata su blindirana, opšivena medijapanom.

Unutrašnja sobna vrata od farbanog medijapana. 

Skrivena šarka, AGN magnetna brava.

Braće Kovač 35

PARKET

U stanovima je predviđen hrastov višeslojni parket dimenzija cca 1000-2000 x 160 x 14 Italijanskog proizvođača LABOR. 

Kupci koji se odluče na kupovinu stana u ranijoj fazi izgradnje imaće priliku da odaberu višeslojni parket istog proizvođača i u istoj vrednosti, ukoliko to žele.

Braće Kovač 35

KERAMIKA I SANITARIJE

Kupci koji se odluče za kupovinu stana u ranijoj fazi gradnje imaće mogućnost prilagođavanja dezena-brenda prema svom ukusu. 

Prvoklasni proizvodi i kolekcije kreirani prema najvišim svetskim standardima vodećih proizvođača tipa Hansgrohe, Duravit, Villeroy Boch ili slično.

Braće Kovač 35

ULAZ U ZGRADU

Moderno dizajniran ulazni deo objekta, projektom je predviđeno postavljanje granitnih ploča prvoklasnog kvaliteta u kombinaciji sa zidom obloženim drvenim oblogama, skrivenom rasvetom i stilizovanim tapetama i tehnikom. 

Botticino & Oriente Brownie mermeri.

Braće Kovač 35

FASADNA STOLARIJA

Prozori, balkonska vrata i klizni otvori su izrađeni od aluminijumske stolarije premium kvaliteta sa odličnim perfomansama termičke izolacije uz visoku konstruktivnu fleksibilnost i izvanredan dizajn.

Niskoemisiono troslojno staklo punjeno argonom. 

Za maksimalan komfor tu su aluminijumske roletne sa elektromotorom.

Braće Kovač 35

GREJANJE I HLAĐENJE

U stanovima je primenjen savremen sistem podnog grejanja, koji omogućava ravnomernu raspodelu toplote u svim prostorijama i značajno viši nivo komfora u odnosu na klasične sisteme grejanja.

Toplota se prenosi preko cele površine poda, čime se obezbeđuje prijatan ambijent, stabilna temperatura i prirodan osećaj topline u prostoru.

Ovakav sistem grejanja obezbeđuje tih rad, zdraviju mikroklimu u prostoru i prijatan osećaj topline tokom cele grejne sezone.

Braće Kovač 35

VAŠ POGLED NA SVET